Private Hideaway Real Estate Office
Santa Ponsa, Mallorca, Spanien

Komplettsanierung einer alten Gewerbefläche

_________________________________________

Baujahr: 1960er Jahre

Planung und Bau: 2024-2025

 

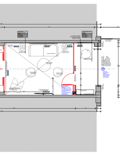
Es ist unvorstellbar, welch neuer Hauch, welche neue Atmosphäre in eine alte Garage einziehen kann. Die Aufgabe war es, in ein ziemlich niedriges, langgestrecktes Objekt ein hochwertiges Real-Estate-Büro einschließlich Showroom zu installieren. Als Erstes wurde untersucht, ob wir die alte Decke entfernen können – und wir stellten voller Freude fest, dass uns dadurch 30 cm zusätzliche Raumhöhe geschenkt wurden.

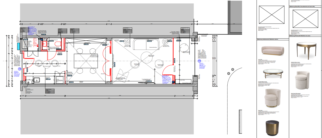
Die Räumlichkeiten wurden in drei Bereiche aufgeteilt: einen kleinen Außenbereich, ein Entrée sowie ein Backoffice mit Kitchenette und kleinem WC.

Als Bodenbelag entschieden wir uns für den mallorquinischen Naturstein Beige Levante, der mit seiner warmen, strukturierten Oberfläche ein wunderbar anheimelndes Ambiente schafft. Auch hier setzten wir bewusst verspiegelte Wandflächen als Gestaltungselement ein, was den Raum deutlich größer wirken lässt. Die hochwertige Möblierung entstand in Zusammenarbeit mit dem Unternehmen Private Hideaway Interior auf Mallorca.

Ein besonderes Highlight dieses Projekts bildet das Lichtkonzept. Hier arbeiteten wir mit flächenbündig integrierten Lichtschienen, die dem Raum eine grafische Ausstrahlung verleihen.

Auch auf feinstofflicher Ebene haben wir bei diesem Objekt gewirkt: Wir haben es von Altlasten und Störfeldern befreit und den Chi-Fluss belebt. Betritt man nun – aus dem Trubel der Außenwelt kommend – das Büro, spürt man sogleich einen Om-Effekt.

Seiten

unser team

leistungen

referenzen

impressum

datenschutz

Innenarchitekturbüro Cordes

09132 / 79 17 705

Am Rahmberg 3
91074 Herzogenaurach
Deutschland

Folgen Sie uns

Privacy Preference Center