Private Residence Algaida
Mallorca, Spanien

Sanfte Transformation eines Einfamilienhauses mit Fokus auf Raumgefühl und Atmosphäre

_________________________________________

Baujahr: 1960er Jahre

Wohnfläche: ca. 160 m²

Planung und Sanierung: 2025–2026

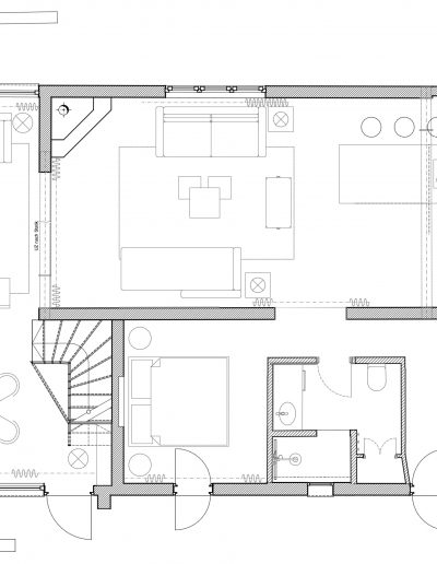
Inmitten der mallorquinischen Landschaft wurde ein Einfamilienhaus aus den 1960er Jahren durch eine behutsame, kosmetische Sanierung in einen ruhigen und lichtdurchfluteten Rückzugsort verwandelt. Auf rund 160 m² Wohnfläche wurde mit bewusst reduzierten Mitteln das vorhandene Potenzial freigelegt und neu interpretiert – mit dem Ziel, Großzügigkeit, Leichtigkeit und ein harmonisches Gesamtbild zu schaffen.

Ein wesentlicher Bestandteil der Planung war das Öffnen und Erweitern der bestehenden, zuvor kleinteiligen Raumstruktur. Enge Räume wurden zusammengeführt, Sichtachsen geschaffen und die Räume neu miteinander verbunden. So entstand ein fließendes Raumgefüge, das heute von Klarheit und Weite geprägt ist.

Die Gestaltung folgt einer sanften, zurückhaltenden Linie. Helle Pastelltöne, natürliche Materialien und weiche Texturen prägen die Innenräume und schaffen eine warme, ruhige Atmosphäre. Eine feine Balance aus skandinavischer Klarheit und mallorquinischer Wärme verleiht dem Haus eine zeitlose, entspannte Eleganz.

Das Haus dient einem Paar aus Palma als Wochenendrefugium – ein Ort, um dem städtischen Leben zu entfliehen und in der Natur zur Ruhe zu kommen. Ein Haus, das nicht laut ist, sondern durch seine stille Präsenz wirkt und Raum für Rückzug, Erholung und neue Energie bietet.

Der Umbau wurde 2025/26 in enger Zusammenarbeit mit ortsansässigen Handwerksbetrieben realisiert. Mit einem bewusst begrenzten Budget lag der Fokus auf der gezielten Weiterentwicklung des Bestands und dem sensiblen Umgang mit Materialien und Raum.

Dieses Projekt zeigt, wie durch Klarheit im Entwurf und einen achtsamen Umgang mit dem Vorhandenen Räume entstehen, die über ihre Funktion hinausgehen – als Orte der Ruhe, der Balance und des Ankommens.

Seiten

Unser Team

Leistungen

Referenzen

Impressum

Datenschutz

CORDES-sacred architecture

+49 9132 79 17 705

Am Rahmberg 3
91074 Herzogenaurach
Deutschland

Folgen Sie uns

Privacy Preference Center